Negozio in affitto

Rho, Via Cardinal A. Ferrari
€ 3.900 / mese
1 locale 1 locale
410 Mq 410 Mq
2 bagni 2 bagni

Negozio in affitto

Rho, Via Cardinal A. Ferrari

Descrizione annuncio

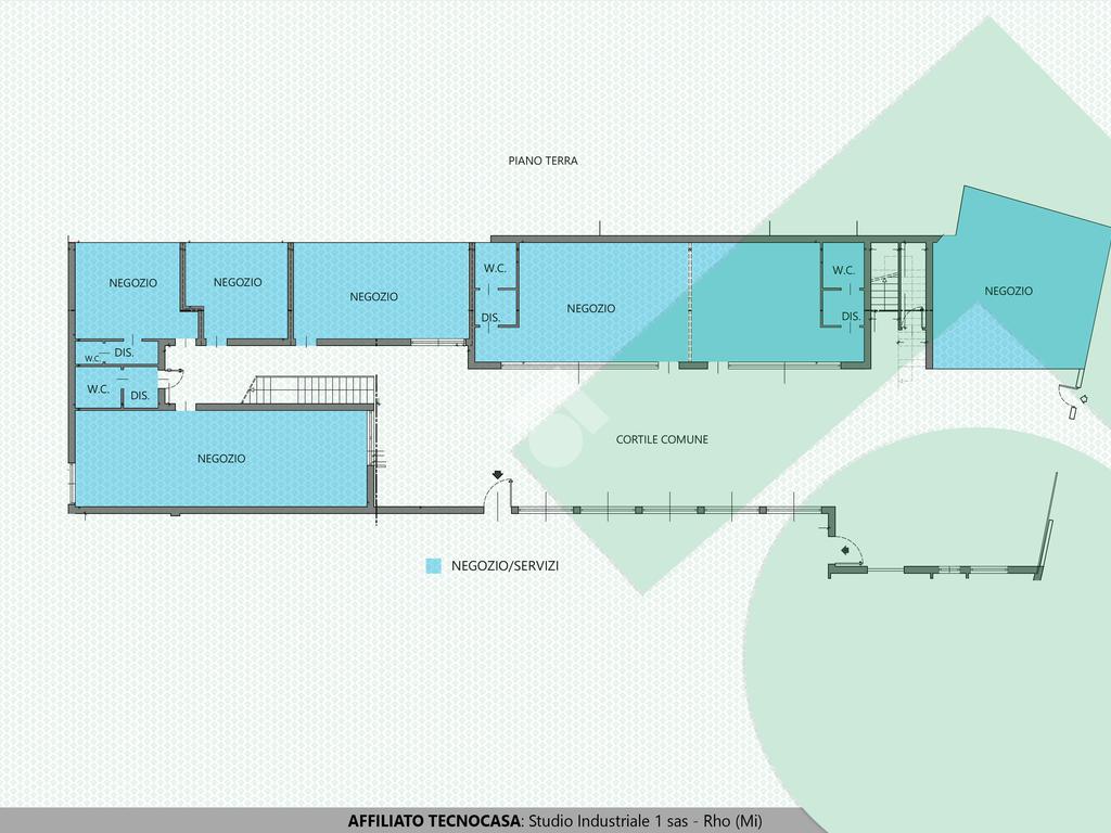
RHO – CENTRO, NEGOZIO DI 410 MQ, 6 VETRINE – ARREDATO - TERRAZZA Zona residenziale. Bar 310 mq – Terrazza 100 mq Centro storico. Visibilità. Piano terra. 1 locale open space al piano terra più locale magazzino. 2 Vetrine antisfondamento. Servizi igienici a norma per disabili. Riscaldamento autonomo. Condizionamento autonomo. Illuminazione. Impianto elettrico. Autostrada, tangenziale e arterie importanti 3 km. Autobus 50 m. Bar e ristoranti 20 m. Parcheggi pubblici nella zona. Stazione ferroviaria a 100 m.

L’IMMOBILE si trova nel centro storico di Rho offrendo un’ottima visibilità, palazzina in opera di tipo civile. L'accesso da strada è consentito tramite un accesso dal cortile. E’ presente una zona carico/scarico per furgoni davanti al negozio. Parcheggi pubblici in zona.

Il NEGOZIO si presta ad attività di bar/pub/pasticceria/tabacchi, ha una superficie totale di 310 mq . ed è composto da un ampio locale open space al piano terra molto luminoso grazie alla presenza di 6 vetrine.

Presente una terrazza al piano superiore ad uso Dehor di 100 mq accessibile tramite scale e montacarichi.

Dotato dei principali IMPIANTI: illuminazione, elettrico con quadro generale, telefonico, dati, riscaldamento e condizionamento autonomo.

LA ZONA

L'immobile è situato in contesto residenziale nel centro di Rho. Autostrada, tangenziale e arterie importanti a 3 km. Autobus a 50 m. Bar e ristoranti a 20 m. Parcheggi pubblici nella zona. Ospedale a 500 m.

Mostra tutto

Nelle vicinanze

Trasporto pubblico Trasporto pubblico
Rho
Rho
880 m
Via Ferrari - Via Carducci (Rho)
Via Ferrari - Via Carducci (Rho)
110 m
Via Stoppani, 21 (Rho)
Via Stoppani, 21 (Rho)
250 m
Ricariche auto elettriche Ricariche auto elettriche
Rho Comune
360 m
Rho Parcheggio delle Poste
500 m
Eneldrive Volta
680 m
Rho Biblioteca Comunale
700 m
Distributore Q8
1,8 Km
Scuole Scuole
Istituto San Michele
200 m
Mani di forbici
240 m
Istituto superiore Olivetti
500 m
I.T.I.S. Stanislao Cannizzaro
520 m
Scuola Secondaria di I grado "F. Bonecchi"
530 m
Farmacia Farmacia
Farmacia Comunale #1
180 m
Parafarmacia Salute
420 m
Farmacia San Vittore
440 m
Farmacia Meazza
450 m
Farmacia Chiaudani
680 m
Ospedali Ospedali
Ospedale di Circolo - Rho
510 m
Ospedale "Giuseppe Casati"
2,0 Km
Supermercati Supermercati
Leader Price
680 m
U2 supermercato
750 m
Il Gigante
970 m
Eurospin
1,1 Km
Carrefour Market
1,3 Km
Negozi Negozi
Il forno delle specialità
360 m
HitGallery
400 m
Oltre
400 m
Intimissimi
400 m
De Biasi
410 m
Bar Bar
Bar
260 m
Al santuario
340 m
Bar Simplon
400 m
Bar Stazione
860 m
Rock n Roll
1,1 Km
Ristoranti Ristoranti
Exò
230 m
Ristorante Pizzeria Visconti
270 m
Voglia di Sushi
380 m
La Corona d'Oro
450 m
Bistrot Al 7
450 m
Mostra tutto

Caratteristiche

Rif.:
61105919
Piano:
1 di 2 (Piano terra)
Condizionamento:
Autonomo
Ascensore:
No
Riscaldamento:
Autonomo
Giardino:
Condominiale
Mostra tutto
Prezzo Prezzo
€ 3.900 / mese
Spese annue Spese annue
€ 1

Classe Energetica

G
G
G
G
G
G
G
G
G
Anno di costruzione:
2000
Riscaldamento:
Autonomo
Tipo impianto:
A pavimento
Tipo alimentazione:
Metano

Ti interessa visionare l'immobile?

Fissa un appuntamento  Fissa un appuntamento

Richiedi informazioni

* Questi campi sono obbligatori
Affiliato
Studio Industriale 1 Sas
Corso Europa, 163/A 20017 Rho (MI)

Il nostro staff


  • Marco Mascherpa
    Affiliato

  • Filippo Currò
    Affiliato

  • Natalia Fedorova
    Responsabile

  • Alessia Angela Gallo
    Coordinatrice

  • Valentina Marino
    Coordinatrice

  • Andrea Nebuloni
    Collaboratore
Corso Europa, 163/A 20017 Rho (MI)
Zona: Rho - Pero - Arese - Nuovo Polo Fiera Milano
Mostra su mappa
Orari: lunedì - venerdì 09.00-12.30 14.30-19.00 sabato 09.30-12.30
Affiliato
Studio Industriale 1 Sas
Corso Europa, 163/A 20017 Rho (MI)

2025 Tecnocasa Franchising S.p.A. - P. IVA 08365160152 - Via Monte Bianco 60/A 20089 Rozzano (MI). Ogni agenzia ha un proprio titolare ed è autonoma. Privacy policy | Policy utilizzo | Cookie policy