Negozio in vendita

Rho, Corso Garibaldi
€ 190.000
1 locale 1 locale
66 Mq 66 Mq
1 bagno 1 bagno

Negozio in vendita

Rho, Corso Garibaldi

Descrizione annuncio

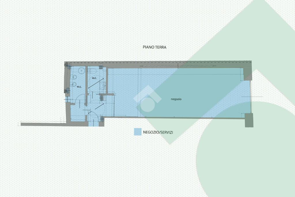
RHO, NEGOZIO POLIFUNZIONALI DI NUOVA COSTRUZIONE

Zona residenziale. Visibilità. Piano terra. 1 locale open space al piano terra. Vetrine antisfondamento. 2 Servizi igienici. Gres Porcellanato. Cappa aspirante.

L'IMMOBILE si trova nelle zona residenziale,in un contesto condominiale di nuova realizzazione. L'accesso da strada è consentito tramite un accesso dal retro nel cortile condominiale e da strada mediante una delle vetrine. E' presente una zona carico/scarico per furgoni davanti al negozio. Parcheggi pubblici in zona.

Il NEGOZIO/UFFICIO polifunzionale si presta a qualsiasi tipo di attività commerciale e non, ha una superficie totale di 66 mq a livello strada ed è composto da un ampio locale open space molto luminoso grazie alla presenza di vetrine che offrono inoltre molta visibilità al negozio. Pavimento in gres porcellanato. Sono presenti 2 servizi igienici.

LA ZONA
L'immobile è situato in contesto residenziale a Rho. Autostrada, tangenziale e arterie importanti a pochi km. Autobus. Bar e ristoranti. Parcheggi pubblici nella zona.

Mostra tutto

Nelle vicinanze

Trasporto pubblico Trasporto pubblico
Rho
Rho
380 m
Corso Garibaldi, 79 (Rho)
Corso Garibaldi, 79 (Rho)
70 m
Via Meda - Via Buon Gesù (Rho)
Via Meda - Via Buon Gesù (Rho)
170 m
Ricariche auto elettriche Ricariche auto elettriche
Rho Comune
210 m
Rho Parcheggio delle Poste
500 m
Eneldrive Volta
520 m
Rho Biblioteca Comunale
1,3 Km
Distributore Q8
1,4 Km
Scuole Scuole
Scuola Primaria Guglielmo Marconi
200 m
Mani di forbici
330 m
I.T.I.S. Stanislao Cannizzaro
380 m
Istituto superiore Olivetti
400 m
Istituto San Michele
450 m
Farmacia Farmacia
Parafarmacia Salute
150 m
Farmacia Meazza
190 m
Farmacia San Vittore
200 m
Farmacia Stazione
290 m
Farmacia San Michele
440 m
Ospedali Ospedali
Ospedale di Circolo - Rho
1,0 Km
Ospedale "Giuseppe Casati"
2,2 Km
Supermercati Supermercati
Il Gigante
460 m
Eurospin
490 m
U2 supermercato
590 m
Carrefour Market
750 m
Leader Price
1,2 Km
Negozi Negozi
Moda sul Corso
70 m
Satin
90 m
Original Marines
100 m
La Dispensa di Roberto
120 m
Camiceria Dave
120 m
Bar Bar
Bar Stazione
360 m
Al santuario
640 m
Bar
810 m
Rock n Roll
810 m
Bar Simplon
950 m
Ristoranti Ristoranti
Ristorante Al Cantuccio
40 m
Pizzeria del Corso
120 m
La Corona d'Oro
160 m
Il Vicolo
180 m
Bistrot Al 7
200 m
Mostra tutto

Caratteristiche

Rif.:
60939499
Piano:
1 di 1 (Piano terra)
Condizionamento:
Autonomo
Ascensore:
No
Riscaldamento:
Autonomo
Libero:
Mostra tutto
Prezzo Prezzo
€ 190.000
Rata mutuo Rata mutuo
€ 898 / mese
Spese annue Spese annue
€ 0
Proponi il tuo prezzoProponi il tuo prezzo

Classe Energetica

G
G
G
G
G
G
G
G
G
Anno di costruzione:
2000
Riscaldamento:
Autonomo
Tipo impianto:
Ad aria
Tipo alimentazione:
Aria

Ti interessa visionare l'immobile?

Fissa un appuntamento  Fissa un appuntamento

Richiedi informazioni

Clicca su Leggi per aprire l'informativa
* Questi campi sono obbligatori

Calcola il tuo mutuo

Semplice e senza impegno
Anticipo

( % )
Mutuo

( % )

pochi semplici passi

inserisci i tuoi dati
Questionario completato
Grazie per aver richiesto un appuntamento senza impegno con un nostro Consulente del Credito e Assicurativo.

Hai inserito correttamente tutti i dati necessari e a breve riceverai una e-mail con un link da convalidare per inviare i tuoi dati.
Affiliato
Studio Industriale 1 Sas
Corso Europa, 163/A 20017 Rho (MI)

Il nostro staff


  • Marco Mascherpa
    Affiliato

  • Filippo Currò
    Affiliato

  • Natalia Fedorova
    Responsabile

  • Alessia Angela Gallo
    Coordinatrice

  • Valentina Marino
    Coordinatrice

  • Andrea Nebuloni
    Collaboratore
Corso Europa, 163/A 20017 Rho (MI)
Zona: Rho - Pero - Arese - Nuovo Polo Fiera Milano
Mostra su mappa
Orari: lunedì - venerdì 09.00-12.30 14.30-19.00 sabato 09.30-12.30
Affiliato
Studio Industriale 1 Sas
Corso Europa, 163/A 20017 Rho (MI)

2026 Tecnocasa Franchising S.p.A. - P. IVA 08365160152 - Via Monte Bianco 60/A 20089 Rozzano (MI). Ogni agenzia ha un proprio titolare ed è autonoma. Privacy policy | Policy utilizzo | Cookie policy