Ufficio in vendita

Rho, Galleria Europa
8 locali 8 locali
184 Mq 184 Mq
1 bagno 1 bagno

Ufficio in vendita

Rho, Galleria Europa

Descrizione annuncio

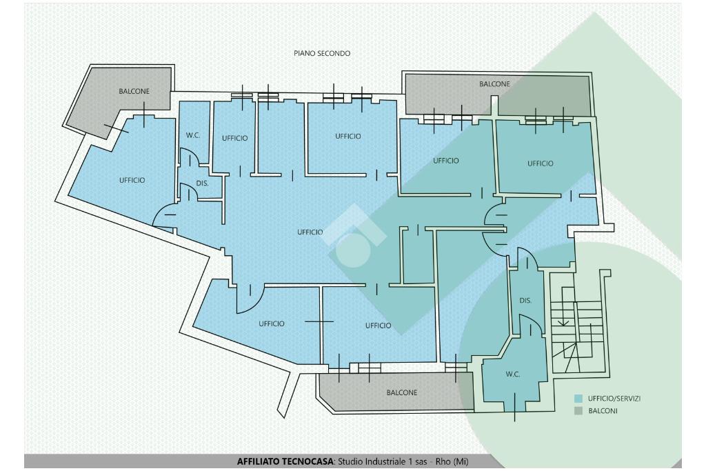
RHO – CORSO EUROPA, UFFICIO DI 184 MQ -Nel comune di Rho, proponiamo in vendita un ufficio di 184 mq situato al piano basso di un edificio costruito nel 2000.

La struttura moderna offre spazi ampi e ben distribuiti, ideali per accogliere diverse postazioni di lavoro e sale riunioni. L'ufficio è dotato di ampie finestre che garantiscono un'ottima illuminazione naturale, creando un ambiente di lavoro confortevole e produttivo.

La posizione strategica consente un facile accesso ai principali servizi e collegamenti di trasporto, rendendo questa soluzione particolarmente adatta per aziende che cercano visibilità e comodità. L'immobile è pronto per essere personalizzato secondo le esigenze specifiche della vostra attività, offrendo una base solida per il vostro business. La vicinanza a Milano e alle principali arterie stradali rappresenta un ulteriore vantaggio per chi desidera un ufficio ben collegato e funzionale.

Mostra tutto

Nelle vicinanze

Trasporto pubblico Trasporto pubblico
Rho
Rho
1,0 Km
Corso Europa - Via Lainate (Rho)
Corso Europa - Via Lainate (Rho)
30 m
Via Lainate - Santuario (Rho)
Via Lainate - Santuario (Rho)
60 m
Ricariche auto elettriche Ricariche auto elettriche
Rho Parcheggio delle Poste
220 m
Rho Comune
490 m
Rho Biblioteca Comunale
860 m
Eneldrive Volta
960 m
Distributore Q8
2,0 Km
Scuole Scuole
Istituto San Michele
240 m
Istituto superiore Olivetti
300 m
Mani di forbici
380 m
Scuole
520 m
Istituto Tecnico Commerciale Statale "Enrico Mattei"
700 m
Farmacia Farmacia
Farmacia Comunale #1
250 m
Farmacia Chiaudani
320 m
Farmacia San Vittore
420 m
Farmacia Meazza
440 m
Parafarmacia Salute
530 m
Ospedali Ospedali
Ospedale di Circolo - Rho
490 m
Ospedale "Giuseppe Casati"
1,7 Km
Supermercati Supermercati
Leader Price
960 m
U2 supermercato
1,0 Km
Eurospin
1,1 Km
Il Gigante
1,1 Km
Carrefour Market
1,1 Km
Negozi Negozi
Intimissimi
380 m
De Biasi
390 m
Oltre
390 m
HitGallery
400 m
Il forno delle specialità
410 m
Bar Bar
Al santuario
60 m
Bar Simplon
480 m
Bar
590 m
Bar Stazione
980 m
Rock n Roll
1,4 Km
Ristoranti Ristoranti
Voglia di Sushi
260 m
Bistrot Al 7
430 m
Exò
440 m
La Corona d'Oro
460 m
Ristorante Pizzeria Visconti
480 m
Mostra tutto

Caratteristiche

Rif.:
61112443
Piano:
2 di 3 con ascensore (Piano basso)
Box:
1
Posti auto:
1
Balconi:
1
Condizionamento:
Autonomo
Mostra tutto
Prezzo Prezzo
€ 300.000
Rata mutuo Rata mutuo
€ 1.418 / mese
Spese annue Spese annue
€ 4.800
Anche in affitto a
Proponi il tuo prezzoProponi il tuo prezzo

Altre caratteristiche

Descrizione dei locali
Bagno Con Finestra

Classe Energetica

G
G
G
G
G
G
G
G
G
EP globale non rinnovabile:
198.73 kW h/m² anno
EP globale rinnovabile:
15.73 kW h/m² anno
EP invernale del fabbricato:
EP estiva del fabbricato:
Anno di costruzione:
2000
Riscaldamento:
Autonomo
Tipo impianto:
A radiatori
Tipo alimentazione:
Metano

Ti interessa visionare l'immobile?

Fissa un appuntamento  Fissa un appuntamento

Richiedi informazioni

Clicca su Leggi per aprire l'informativa
* Questi campi sono obbligatori

Calcola il tuo mutuo

Semplice e senza impegno
Anticipo

( % )
Mutuo

( % )

pochi semplici passi

inserisci i tuoi dati
Questionario completato
Grazie per aver richiesto un appuntamento senza impegno con un nostro Consulente del Credito e Assicurativo.

Hai inserito correttamente tutti i dati necessari e a breve riceverai una e-mail con un link da convalidare per inviare i tuoi dati.
Affiliato
Studio Industriale 1 Sas
Corso Europa, 163/A 20017 Rho (MI)

Il nostro staff


  • Marco Mascherpa
    Affiliato

  • Filippo Currò
    Affiliato

  • Natalia Fedorova
    Responsabile

  • Alessia Angela Gallo
    Coordinatrice

  • Valentina Marino
    Coordinatrice

  • Andrea Nebuloni
    Collaboratore
Corso Europa, 163/A 20017 Rho (MI)
Zona: Rho - Pero - Arese - Nuovo Polo Fiera Milano
Mostra su mappa
Orari: lunedì - venerdì 09.00-12.30 14.30-19.00 sabato 09.30-12.30
Affiliato
Studio Industriale 1 Sas
Corso Europa, 163/A 20017 Rho (MI)

2026 Tecnocasa Franchising S.p.A. - P. IVA 08365160152 - Via Monte Bianco 60/A 20089 Rozzano (MI). Ogni agenzia ha un proprio titolare ed è autonoma. Privacy policy | Policy utilizzo | Cookie policy